Welcome To

49 D , Ottawa, Ontario, H0H 0H0


Scroll

Property Details



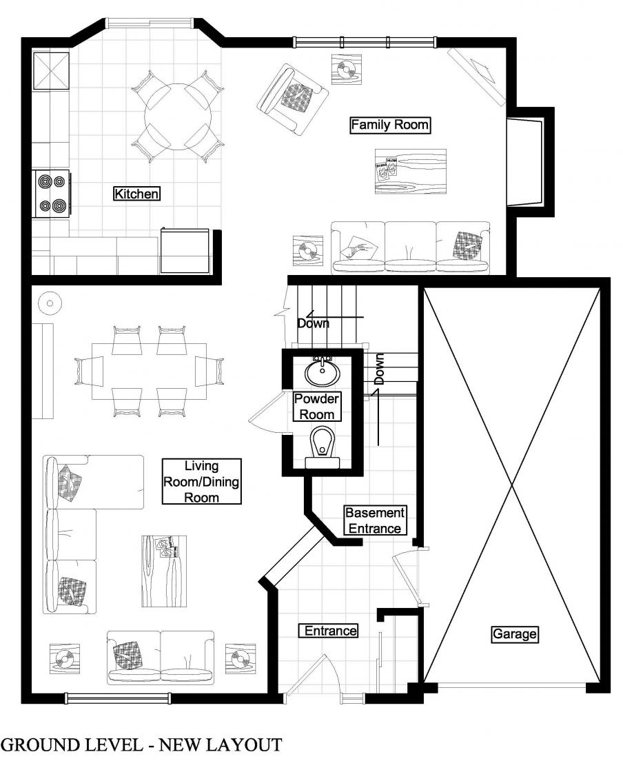
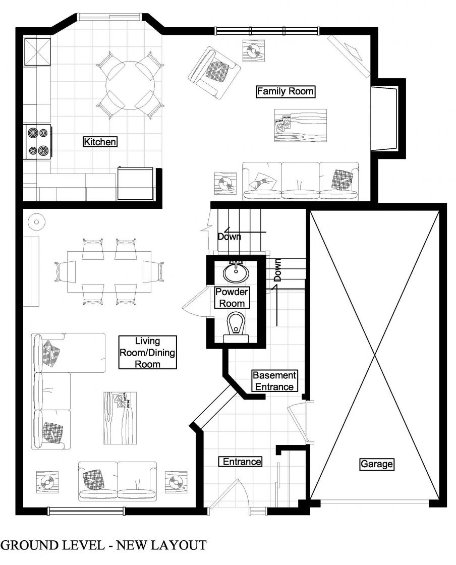
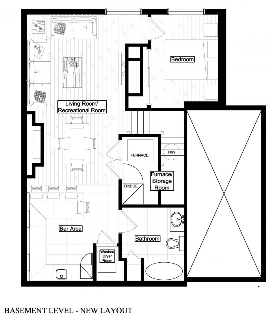
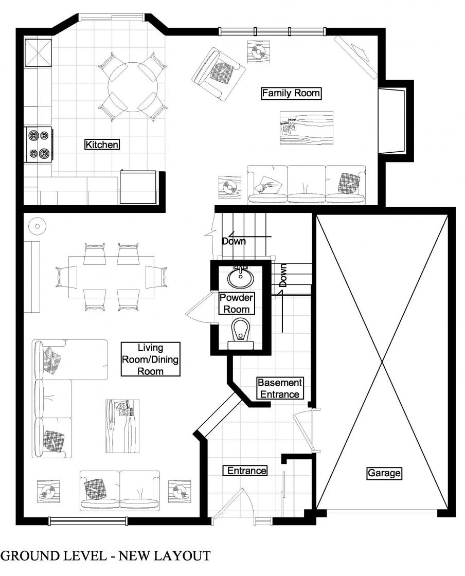
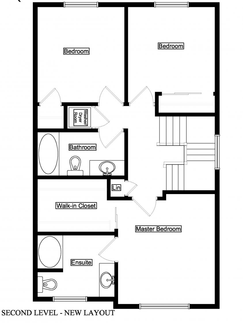
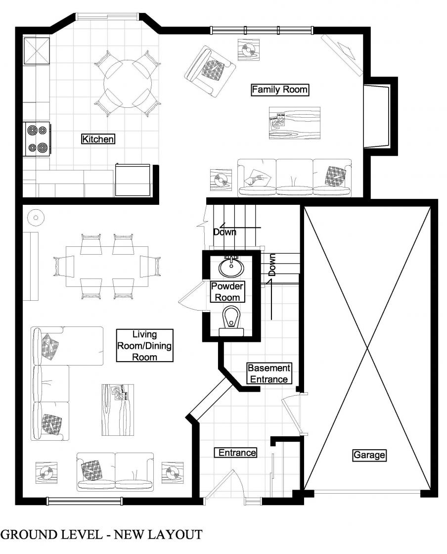
Home includes: 4 bedrooms, 3.5 bathrooms, 2 family rooms, 2 gas fireplaces, private back yard, and modern bar for the perfect man's cave or in-law suite. The home has a single car garage but parking for 5 cars. Beautiful basement renovations by iDesignSpaces.ca include: - Large 3-piece bath with ceramic tiles and tiled wall - Large bar area with pot lights galore & glass tile backsplash to ceiling - Stunning gas fireplace with cultured stone - Large window in family room brings in natural light even to bar area - Open concept with high end laminate and porcelain tiles - One bedroom with good closet space and large window - Family room with built in TV unit - High efficiency furnace in storage room

  •  Type Residential
  •  3+1 Beds
  •  3.5 Baths
  •  2 Storey Style
  •  36.42 feet x 100.07 feet Lot Size

Photo Gallery


View Full Gallery

Google Views

View

Presented By

SuzAnne LeBlond
Sales Representative

suzanne@lovethathome.ca

www.lovethathome.ca

613-866-8000

Royal LePage Team Realty

4-3101 Strandherd Drive, Ottawa, ON Ontario K2J 4G3

613-825-7653

Get In Touch