Welcome To

6713 Chris Tierney Private, Greely, Ontario, K4P 1H4


Scroll

Property Details


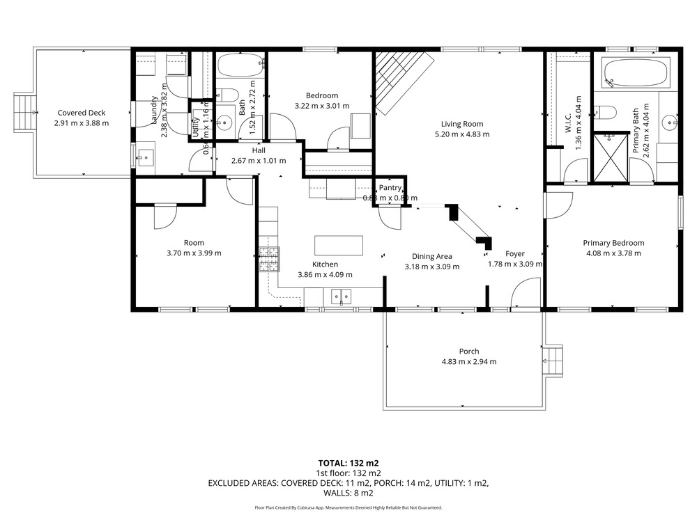
Welcome to The Park, an exclusive community offering the perfect blend of comfort, privacy and connection. This bright and spacious bungalow is filled with natural light and designed for ease of living. The open-concept layout features crown molding throughout with a generous living room with a gas fireplace. The well-appointed kitchen features an island/breakfast bar, pantry, pot-lighting and dining area. The home offers a primary bedroom featuring a walk-in closet and a private 4 piece en-suite with soaker tub and glass shower. The 2nd and 3rd bedrooms offer ample closet space. Main level laundry room with access to the covered back deck.

  •  Type Residential
  •  3 Beds
  •  2 Baths
  •  Bungalow Style

Photo Gallery


View Full Gallery

Interactive Floorplans

Google Views

View

Get In Touch