Welcome To

213 Nash Rd S #33, Hamilton, Ontario, L8K 6S2


213 Nash Rd S #33, Hamilton
Ontario, L8K 6S2

Fantastic Bungalow Townhome

  •  Type Residential
  •  1 Storey Style
  •  2 Beds
  •  1.5 Baths
  •  1204 Sq. Ft.

Property Description

This over sq ft bungalow townhouse is an end unit within a small, desirable complex in a coveted Southeast Hamilton area. The open-concept layout features ample natural light. A wrap-around porch offers outdoor space. This sought-after end unit incl 2 bedrms, 1.5 baths, & main floor laundry. The attached garage provides inside entry & garage door opener. The driveway accommodates two vehicles. The location offers significant convenience with easy access to public transit and highways. Nearby amenities include Eastgate Mall, a recreation center, various parks, Battlefield House Museum & Park, St. Joseph's Health Care, and extensive shopping options. This unit presents a strong offering in a well serviced area.

Photo Gallery

View Full Gallery

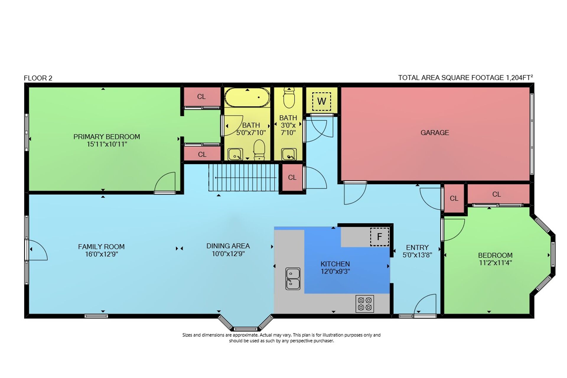
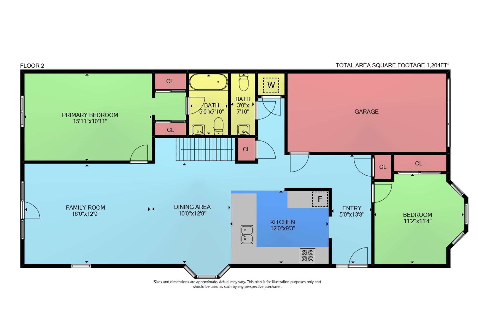
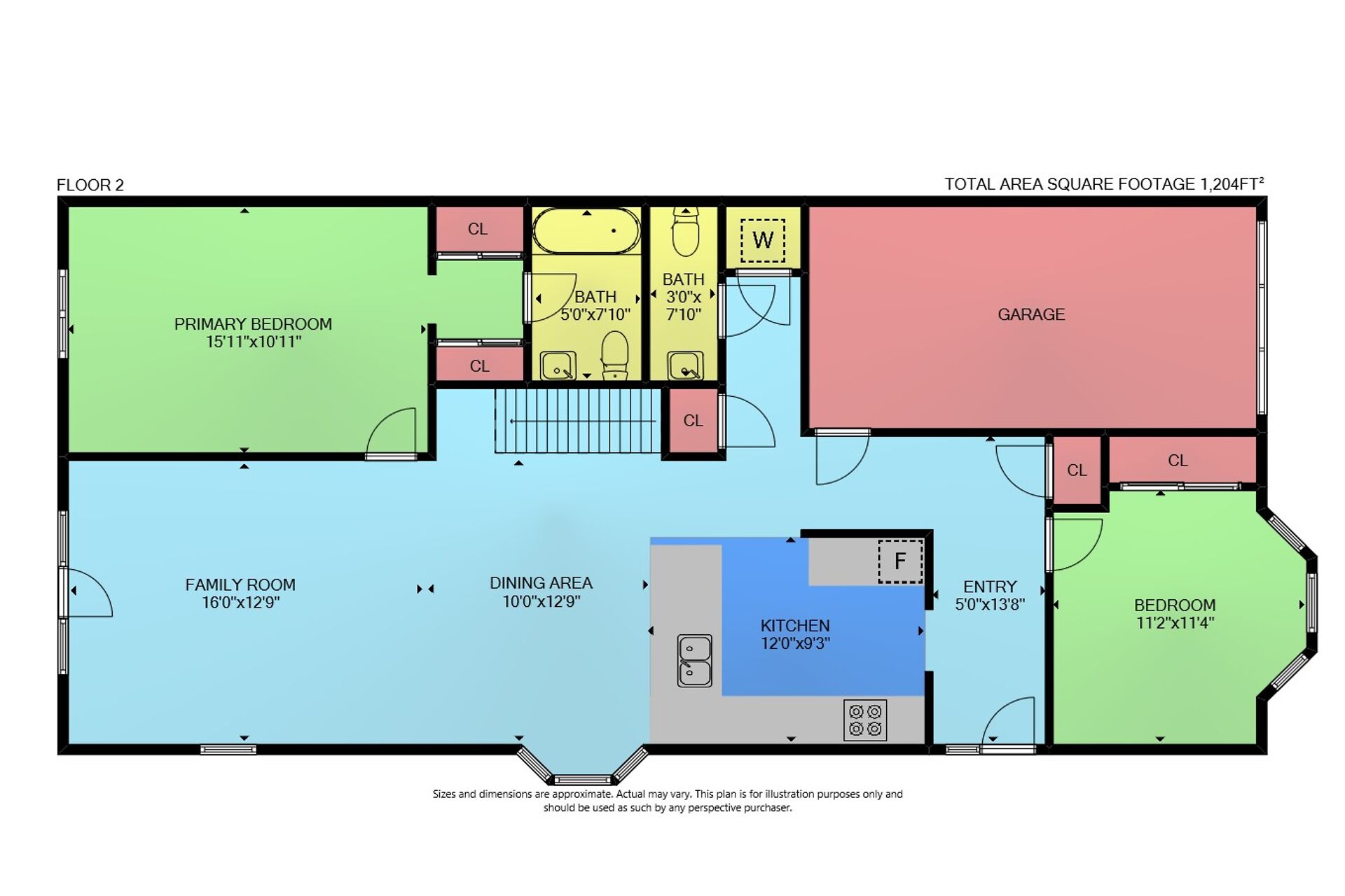
Interactive Floorplans

Main floor: 1204 sq ft, Basement: 1055 sq ft

Total: 2259 sq ft

Sizes & Dimensions Are Approximate, Actual May Vary

Google Views

213 Nash Rd S #33

View
©2022 MyVisualRealEstate.com Inc. All Rights Reserved.